Design Builds are often included in our projects.
This approach enhances the relationship between design and construction and offers a smoother and more efficient project.
Having the ability to provide Design Services, along with Construction Services makes for a smoother project. From the beginning, the Design Team and Contractor work together to create the project and are on the same page. Once the design is complete, the contractor has already, figuratively, built the project many times. Brnardic Corp is an experienced Design / Build Contractor and has completed projects across Western Pennsylvania including Allegheny, Armstrong, Butler, Westmorland, Washington, Beaver, Indiana, and Somerset county.
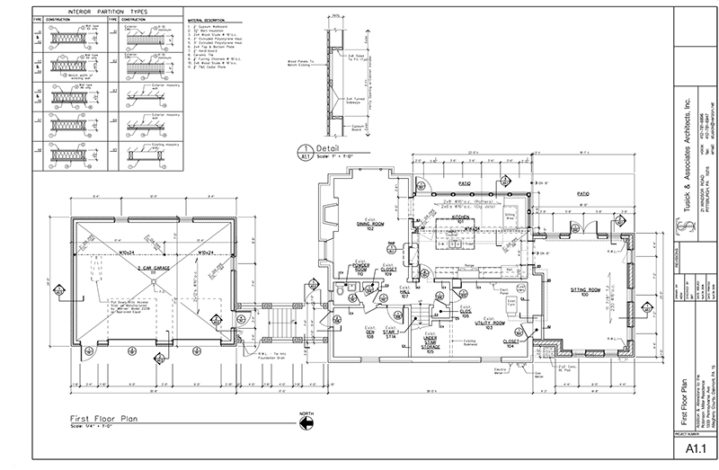
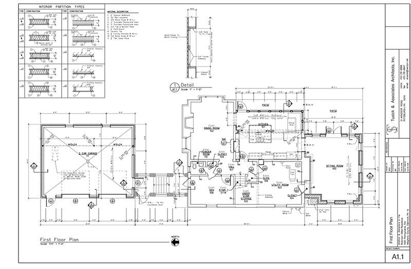
Design Build Project Progress
Contact us to start your design build project today.








